ASL-100 CEPHE SİSTEMLERİ | Aslanlar Alüminyum

ASL-100 CEPHE SİSTEMLERİ

Geniş ve yüksek açıklık gerektiren alanlarda, magaza, vitrin, showroom gibi cephelerde, tercih edilen bir sistemdir. KAPAKLI, YARI KAPAKLI, SİLİKON ve ENTEGRE CEPHE özelikleriyle çözülebilmektedir. Buna ek olarak alüminyum kullanımı minimum miktarlarda olduğundan yüksek ekonomide sağlamaktadır.

Teknik Özellikler

Profil Genişlikleri: 50 mm

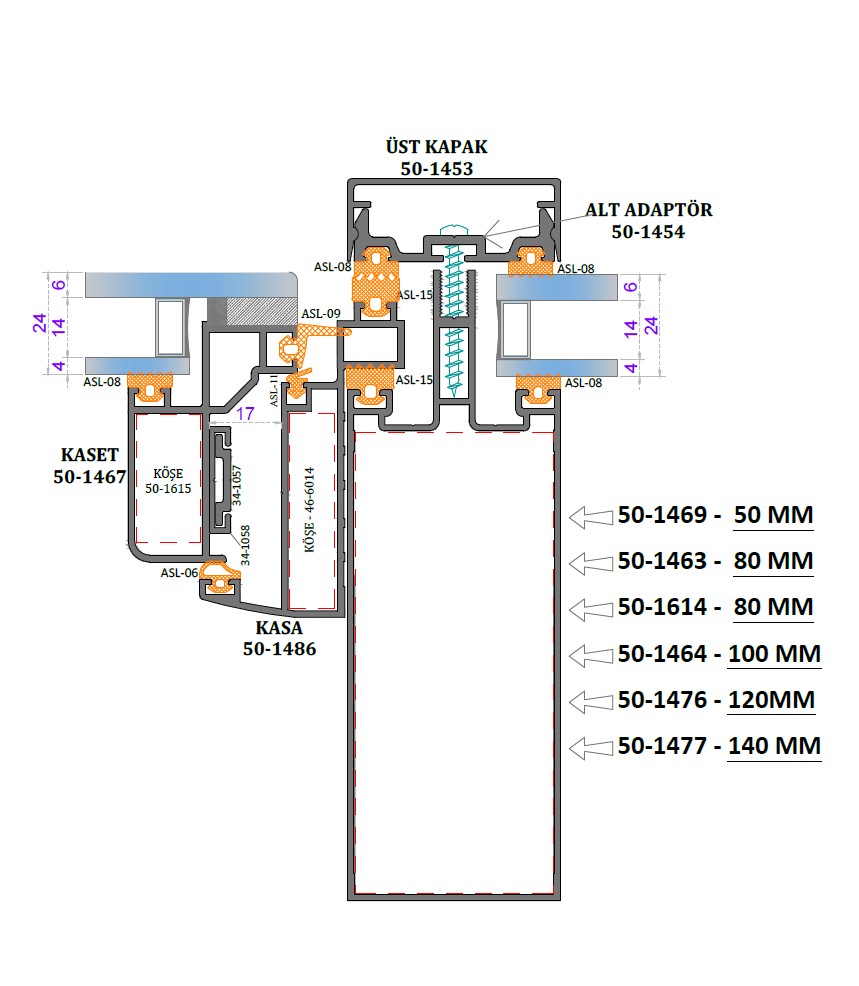
Kasa  Derinlikleri: 50 mm, 80 mm,100 mm,120 mm,140 mm,

Profil Et Kalınlığı: 1,4 mm – 1,8 mm

Cam Kalınlığı: 22 mm - 32,5 mm

Kullanım Seçenekleri

Kapaklı Cephe: Uygun

Silikon Derzli Cam Cephe: Uygun

Yarı Kapaklı Cephe: Uygun

Kasetli Silikon Cephe: Uygun

Teknik Detaylar

X
WhatsApp destek ekibimiz sorularınızı cevaplıyor.
Merhaba, nasıl yardımcı olabiliriz?
Nasıl Yardımcı Olabiliriz?